3件
-
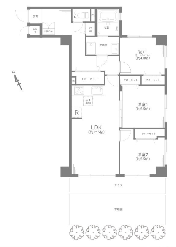
2,299万円
1階 / 69.23㎡ / 2SLDK /築37年 /5階建
- エレベーター
- リフォーム済
- 専用庭
- 駐輪場
- システムキッチン
- 追焚機能浴室
「ライオンズマンション東川口第2」:川口市エリアの新居にピッタリ。広々とした12帖以上のLDKのおかげで、日々の生活にゆとりが出ます。第二種中高層住居専用地域とは、中高層住宅の快適な住環境を守るための地域です。ファミリーも嬉しい。広々リビングのある2SLDKのお家。快適な環境はとても大事ですよね。不動産情報をお求めでしたら、東川口周辺できっと見つかるでしょう。info@saitamakaihatu.jpに当社までお気軽にお問い合わせ下さい。
-
2,799万円
- / 101.85㎡ / 4LDK /築18年 /2階建
- プロパンガス
- 陽当り良好
- 収納豊富
- システムキッチン
- 浴室乾燥機
- 温水洗浄便座
物件探しを始める方へ。南東向きの中古一戸建をご紹介しています。開放感のある間取りの4LDK物件です。価格は2,899万円です。新しいお住まいにいかがでしょうか。土地面積131.36㎡(公簿)の中古一戸建となっております。当社スタッフが住まい探しをサポート致しますので、東川口周辺へお引っ越しをするなら、ぜひお問い合わせください。
こだわりポイント満載の大門 戸建。幅広い方にご好評な2,780万円の物件での新生活。ダブルロックキーはプラスの良いことがたくさんあります。子供がのびのび走り回れる4LDKの物件はこちらです。一戸建て購入をお考えなら、当社にお任せください。お気に入りの住まいを見つけて、よりご希望に近い生活を送りましょう。ぜひ当社をご利用くださいませ。